账号将于20XX年X月X日过期,尽快续费哦!

立即续费
每日签到 / 注册
工具下载
帮助中心 三维家官网

三维家

上传方案

新建3D方案

打开3d软件开始方案设计
  • 1.在线制作3D方案;
  • 2.1000万+素材高效搭配;
  • 3.2分钟出效果图,720°全景图
  • 4.简单编辑即可上架

新建自定义方案

可上传图片+全景链接
  • 1.极速上传已有效果图、实景图;
  • 2.可添加全景链接,使你的方案更加丰满;
  • 3.保存发布即上架。
选择已有方案
预览中,作品尚未上架,预览地址仅自己可见
  • 新浪微博
  • QQ好友
  • QQ空间
  • 微信扫码
方案名:FDS | 浙江华都大源现代轻奢效果表现
风格:轻奢
户型:四居室
效果图:全屋概览效果图、客厅效果图、餐厅效果图、厨房效果图、儿童房效果图、主卧效果图

FDS | 浙江华都大源现代轻奢效果表现

发布于 2020-12-01
轻奢 164.41m² 四居室 103266 67 105
陆发进 丨 FDS DESIGN

全屋概览

FDS 室内设计 设计出品

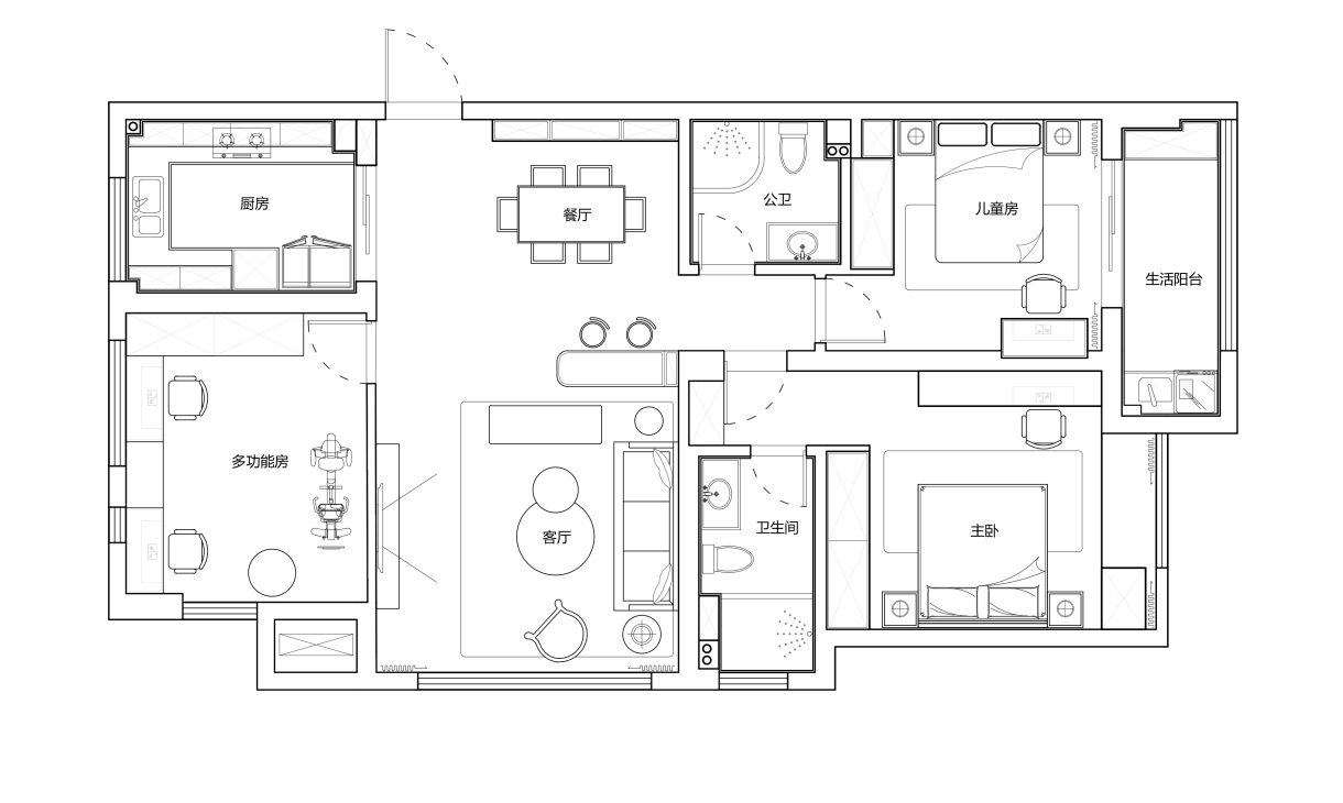
平面图

查看模型>>

客厅

查看模型>>

餐厅

查看模型>>

厨房

查看模型>>

主卧

查看模型>>

儿童房

查看模型>>

书房

查看模型>>

阳台

查看模型>>

公卫

查看模型>>
登录 / 注册 后展开完整方案

© 著作权归原作者所有。商业转载请联系作者获得授权,非商业转载请注明出处。

全部评论 (0)
大神,别默默的看了,快登录帮我点评一下吧!:)
陆发进 丨 FDS DESIGN
上架协议
  • 1.作品一经上架,即视为同意三维家拥有对全部上架作品的作品进行展示、报道、出版、宣传、收藏的权利。
  • 2.若所提交作品在商业使用中其权属著作权存在争议,三维家不承担因作品侵犯他人(或单位)的权利而产生的法律责任,由提供作品的参与者承担全部法律责任。
  • 3.作品的参与者接受并遵循后期因三维家运营需要,对各则进行调整、修订。
提示
上架成功!
提示
工作人员将于3-5个工作日内审核,请耐心等待哦! 去装修设计看看其他的优秀案例吧!
方案投稿

平台资源位+移动端矩阵+个人IP打造,助你广获客源

视频介绍
文字介绍
  • 清晰度

    高清、超清、4K、全景四种清晰度均可参与投稿。

  • 原创性

    从整体布局、色彩搭配以及创意灵感等方面彰显个人设计主张,原创不得抄袭,在平台内无相似方案,例如不可套用样板间。

  • 完整性

    每个空间至少2张效果图+1张全案全景图展示,方案描述完整,所有空间需命名。

选择方案