账号将于20XX年X月X日过期,尽快续费哦!
立即续费签到成功,积分+1
本方案为轻奢风格的瓷砖展厅,据落地案例改编,将原有方案进一步的深化,对于一个工装展厅来说最重要的是能将产品展示出它应有的发光点,让展品能够自己说话,而这单单靠产品本身是凸显不出任何效果的,一块好的铁还得百炼成钢呢,就橡一块布料要经过裁缝的拼接缝合才能呈现美丽的衣服。在这里的瓷砖也是一样的,得经过设计者对于不同材料上的一个主次搭配,才能凸显产品的一个档次和效果。
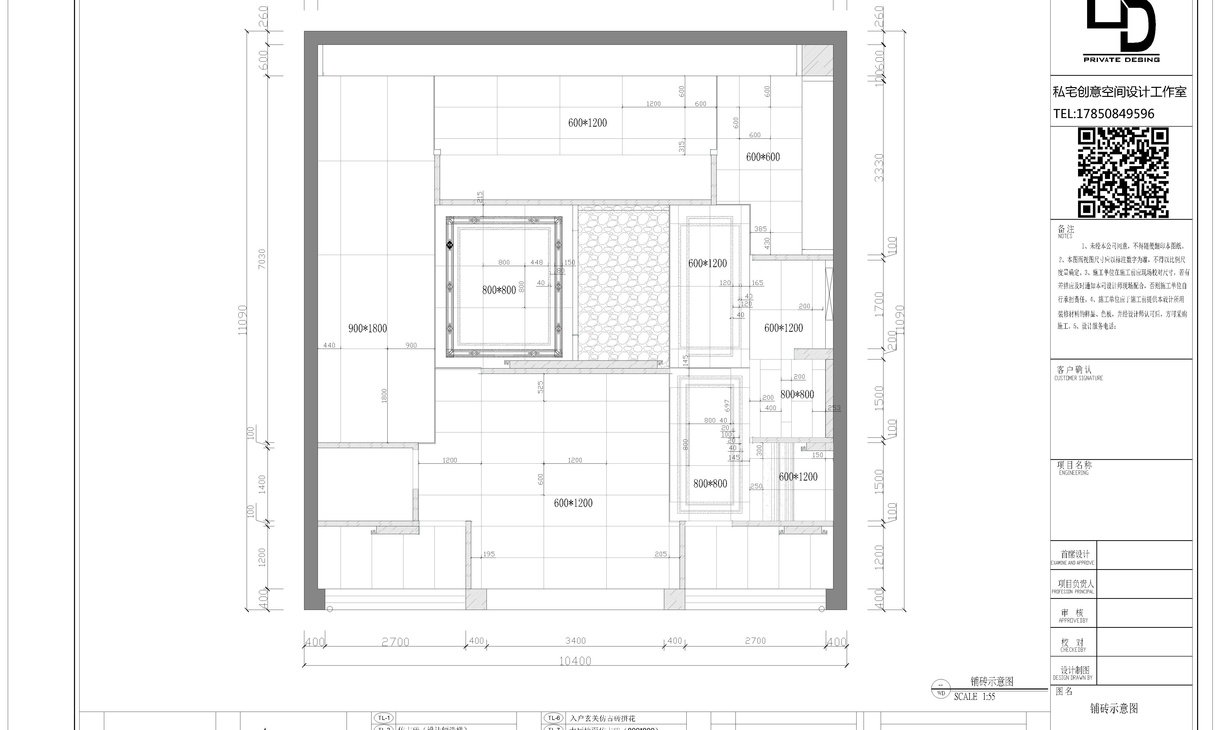
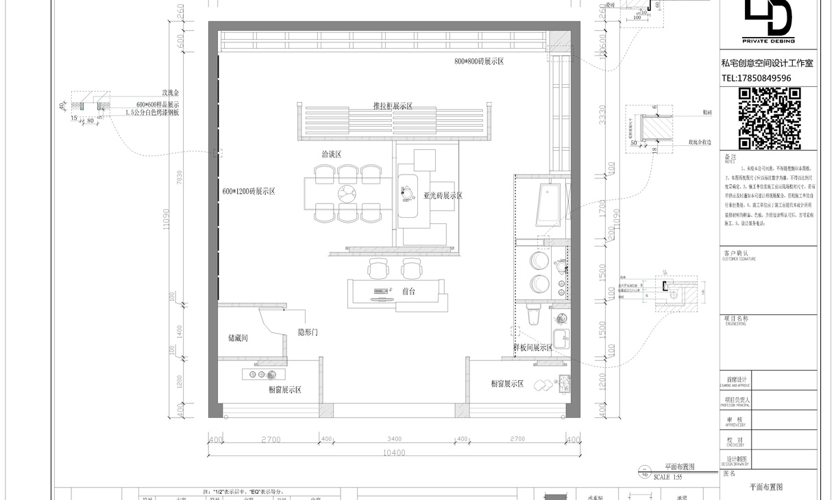
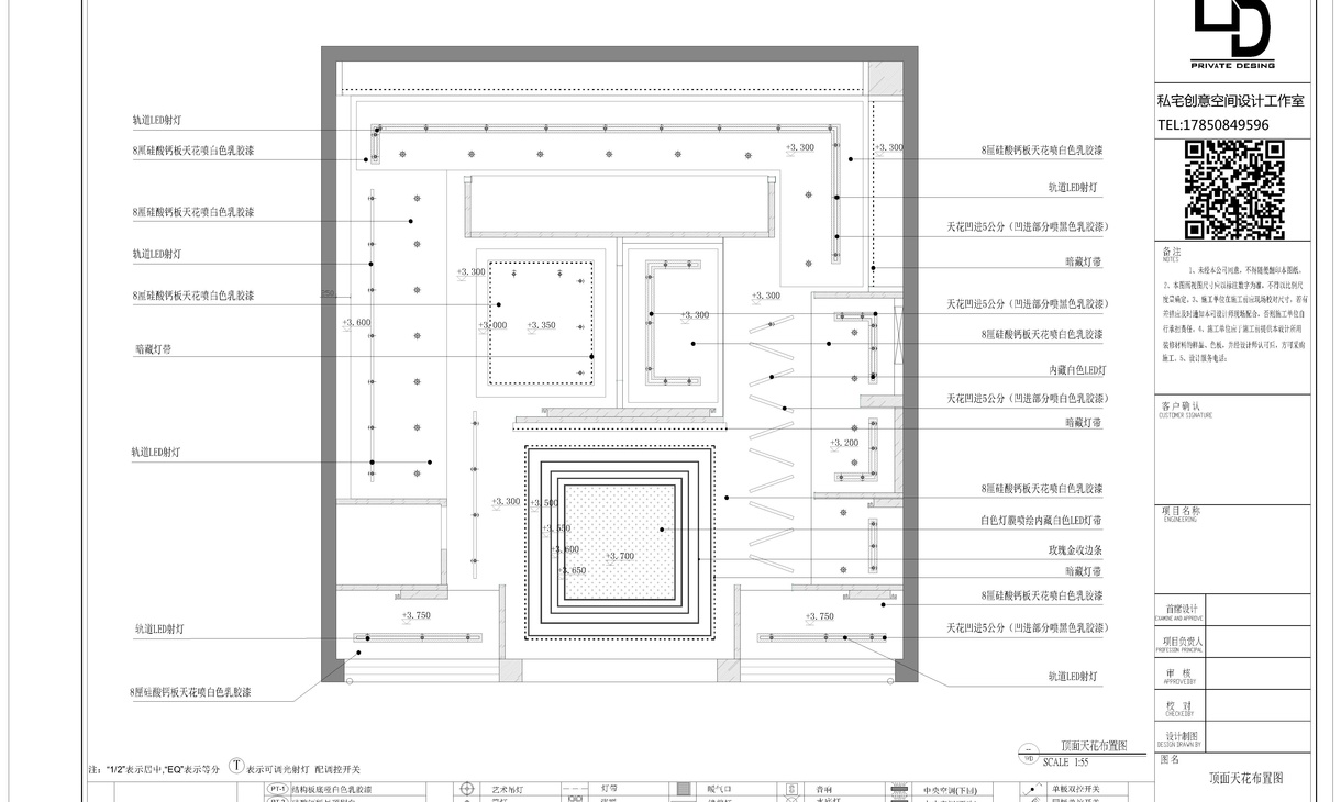
在三张平面图可以看出设计师对于整个空间的一个把握度,和细节处理度。设计师将整个大空间分为橱窗展示区、前台展示区、样板间展示区、茶室展示区、推拉板展示区、斜板展示区。在【平面布局图】可以看出设计者对于整个空间的人流动线规划,客户无论是从左边还是右边进去,都能将展厅参观一遍。再看【平面铺贴图】在设计之初是有考虑到整个空间对于不同规格大小瓷砖的规划,每个不同大小的空间都有相对应适合这个空间大小的瓷砖样品。接着看【吊顶布置图】这个展厅的顶面是铁皮顶,到夏天温度一高,整个空间会显得更加闷热,所以全部采用石膏板封顶,这样方便后期空调的使用,在部分区域采用轨道灯设计,方便调节投射位置和在样品上的光照强度。
前台是一个展厅较为重要的部分,是路过人群一眼就能望见的,背景墙一定要醒目,在设计上我采用以白色大板瓷砖为主色,灰色大板瓷砖为辅色的撞色拼接法,中间拉槽内嵌玫瑰金,使得整个板面灵动性十足,柜台的设计同样也是采用木工板打底,用黑白瓷砖撞色,暗藏灯带,整个柜台凹凸有致。吊顶采用错层设计,玫瑰金镶边,中间为主光源,整个层次感十足。
这个区域的设计灵感来源于日本的枯山水,而日式给人营造的就是静谧的舒适感,白沙、石子、枯枝、亚光砖踏板,给人在这满满都是瓷砖的展厅里有个眼前一亮的感觉,消除产品看久了产生的视觉疲劳感。中间的隔墙采用近年较为流行的圆形镂空法,采用玫瑰金包边,这种设计不但符合视觉美感需求,在功能上让两个区域没有完全隔断通过这个圆洞拉近两边的关联!
© 著作权归原作者所有。商业转载请联系作者获得授权,非商业转载请注明出处。



平台资源位+移动端矩阵+个人IP打造,助你广获客源
高清、超清、4K、全景四种清晰度均可参与投稿。
从整体布局、色彩搭配以及创意灵感等方面彰显个人设计主张,原创不得抄袭,在平台内无相似方案,例如不可套用样板间。
每个空间至少2张效果图+1张全案全景图展示,方案描述完整,所有空间需命名。























